Схема выброса дроби

Техническое описание
Дробеметная камера НС-1200/3 предназначена для очистки отливок, поковок и небольших сварных конструкций.
Оборудование оснащено тремя дробеметными турбинами типа АBR–400. Они расположены таким образом, чтобы выброс дроби выполнялся в разных параллельных плоскостях, позволяя потоку дроби обработать подвешенную деталь равномерно со всех сторон.
Турбины имеют аксиальную восьмилопастную конструкцию с гравитационным подводом дроби и с механическим ускорителем, таким образом, обеспечивается точная дозировка и установка направления выброса дроби.
Дробеметная камера оборудована двумя рельсовыми подвесками, которые размещаются на Y-образном конвейере, таким образом детали можно заменять на одной подвеске, пока идёт цикл очистки деталей на другой подвеске.
Детали, подлежащие очистке, подвешиваются на крюки, расположенные на направляющих рельсах, и перевозятся в центр камеры очистки вручную. Во время цикла очистки, подвеска деталей постоянно вращается перед турбинами за закрытыми дверями камеры.
Дробеметание осуществляется в изолированной дробеметной камере. Дробеметная обработка возможна только при закрытых дверях, двери обеспечивают совершенную защиту от случайного выброса дроби из камеры.
Активная зона машины с внутренней стороны имеет покрытие из высоко-износостойкой марганцовистой стали, а другие внутренние поверхности защищены толстыми износостойкими резиновыми пластинами.
Закрытую и непрерывную рециркуляцию дроби обеспечивают: сборочный бункер со шнеком, ковшовый элеватор, и система очистки дроби, работающая по принципу аспирации дроби и выдувания сора. С помощью дозировочного клапана дробь возвращается к дробеметным турбинам.
В целях достижения оптимальной чистоты поверхности, возможна регулировка дозы и направления выброса дроби. После очистки детали вывозятся из камеры вручную, а на их место перевозится заранее подготовленная подвеска новых деталей. Для удаления и отделения образовавшейся во время очистки пыли мы предлагаем картриджное пылеотделительное устройство в комплекте с вентилятором и необходимым трубопроводом.
Работа машины производится в автоматическом режиме, но на случаи сервисных работ предусмотрена возможность ручного управления.
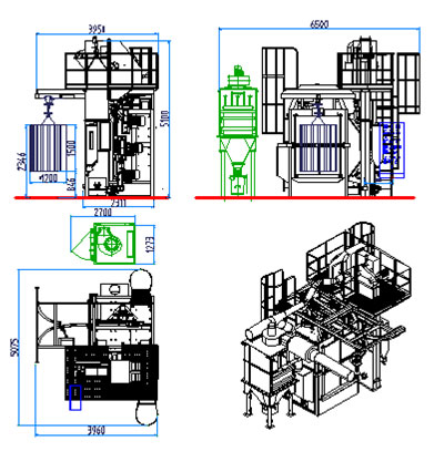
Схема размещения установки с габаритами

| ХАРАКТЕРИСТИКИ |
|
| Максимальные размеры подвески |
|
| Высота |
мм |
1500 |
|
| Диаметр |
мм |
1200 |
|
|
Турбины
|
|
| Количество |
шт |
3 |
|
| Тип |
|
ABR-400 |
|
| Диаметр |
мм |
400 |
|
| Частота вращения |
об/мин |
2400 |
|
| Выброс дроби одной турбиной |
кг/мин |
180 |
|
| Мощность одной турбины |
кВт |
7,5 |
|
| Конвейер |
|
| Допустимая нагрузка |
кг/подвеска |
500 |
|
| Питание |
|
|
Электрическое
|
Основная установка |
кВт |
29 |
|
| Аспирация |
кВт |
5,5 |
|
|
Cжатый воздух
|
Давление |
бар |
6 |
|
| Объём |
м3/ч |
6 |
|
| Масса загружаемой дроби |
кг |
1500 |
|
| Предлагаемые размеры дроби |
мм |
0,4-1,2 |
|
| Мощность фильтро-вентиляционного устройства |
м3/ч |
5000 |
|
| Электрические характеристики |
|
| Напряжение сети |
В |
3 х 400 |
|
| Напряжение управления |
В |
24 |
|
| Частота тока |
Гц |
50 |
|
|
|
|
|
|
|
|
|
|